Casa semindipendente in vendita

Appignano Del Tronto, Via Guglielmo Marconi
€ 150.000
9 locali 9 locali
228 Mq 228 Mq
2 bagni 2 bagni

Casa semindipendente in vendita

Appignano Del Tronto, Via Guglielmo Marconi

Descrizione annuncio

APPIGNANO DEL TRONTO. Poniamo in vendita abitazione semindipendente cielo terra ristrutturata con il sisma bonus.

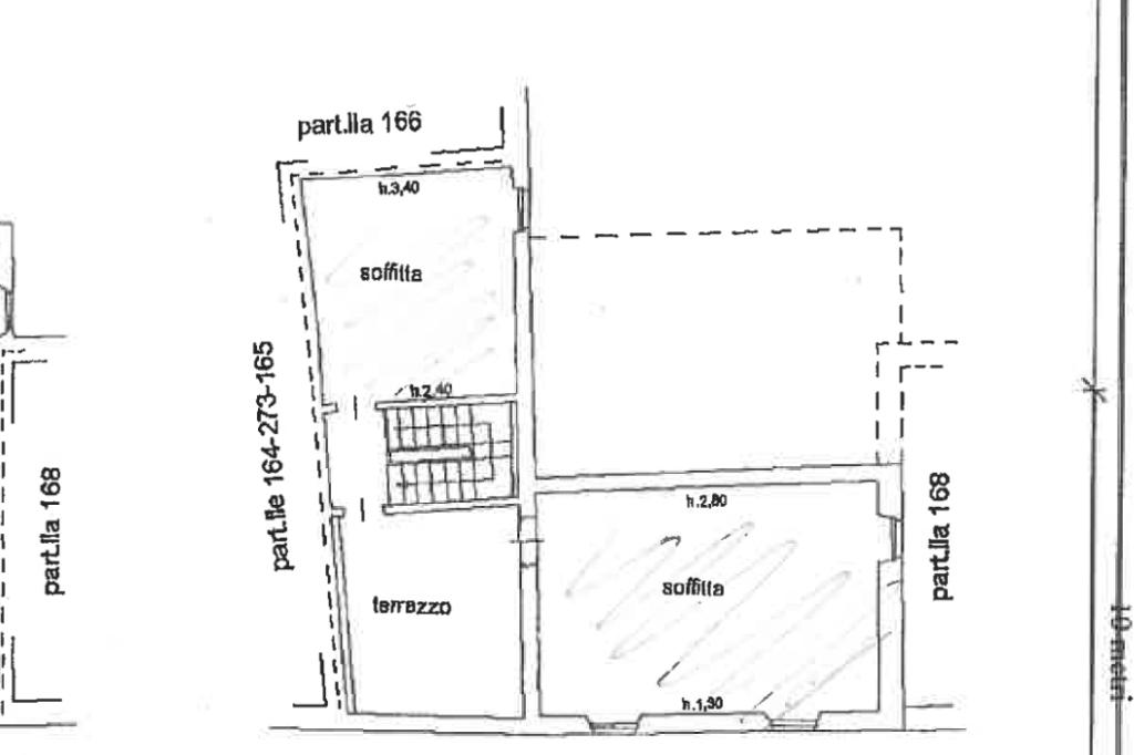
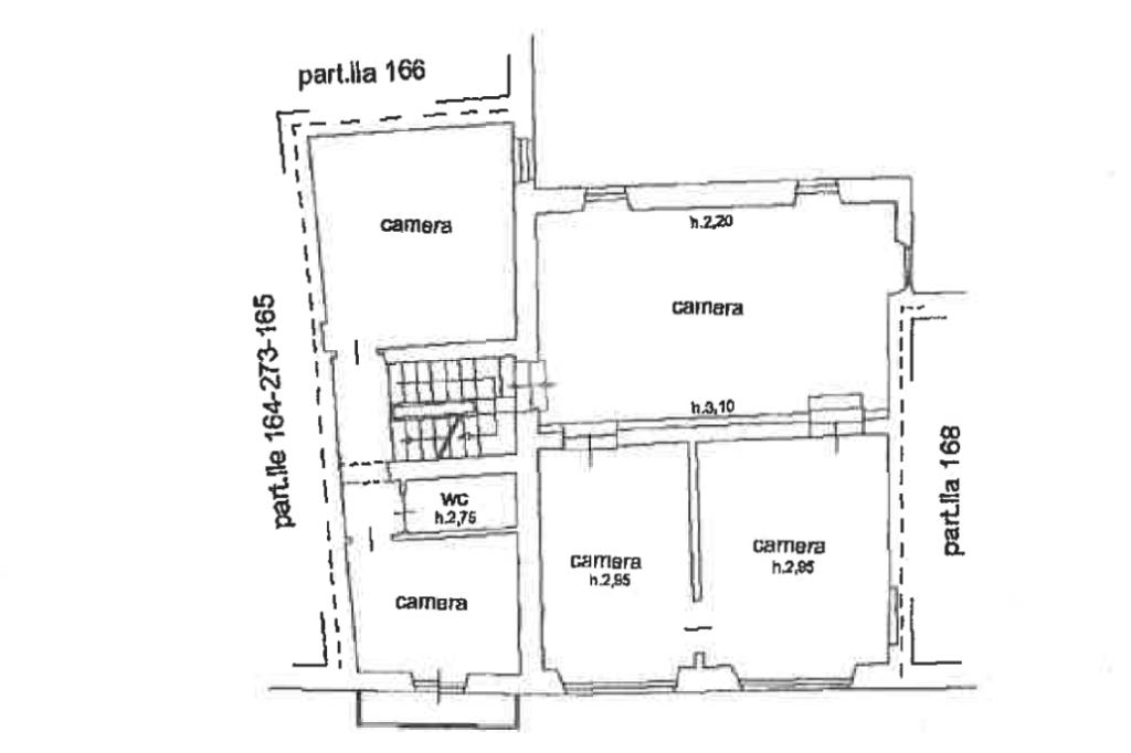
La soluzione è predisposta su più livelli: al piano terra troviamo l'ingresso, un bagno cieco con doccia, e una stanza con la predisposizione per la cucina. Salendo al primo piano troviamo una cucina abitabile con camino e una sala. Al primo piano ammezzato si trovano due stanze con travi a vista. Al secondo piano ci sono due camere una doppia e una singola con il balcone. Al terzo e ultimo piano troviamo una camera con terrazza panoramica e una stanza con travi a vista e predisposizione per una cucina.

Ideale per chi vuole vivere in un contesto tranquillo.

La classe energetica G è inserita di default in quanto l'attestato di prestazione energetica è in fase di rilascio.

Per ulteriori informazioni contattateci:

0736-814256

Whatsapp: 334 795 5894

Email: apho2

Seguiteci anche su:

Facebook: Gruppo Tecnocasa Castel Di Lama

Instagram: @tecnocasacasteldilama

Mostra tutto

Nelle vicinanze

Trasporto pubblico Trasporto pubblico
Trasporto pubblico
2,5 Km
Ristoranti Ristoranti
Santa Lucia
2,8 Km
Mostra tutto

Caratteristiche

Rif.:
61143337
Piano:
3 di 3 (Piano su più livelli)
Balconi:
1
Terrazzi:
1
Camere da letto:
5
Arredamento:
Assente
Mostra tutto
Prezzo Prezzo
€ 150.000
Rata mutuo Rata mutuo
€ 713 / mese
Spese annue Spese annue
€ 0
Proponi il tuo prezzoProponi il tuo prezzo

Classe Energetica

G
G
G
G
G
G
G
G
G
EP invernale del fabbricato:
EP estiva del fabbricato:
Anno di costruzione:
1967
Riscaldamento:
Autonomo
Tipo impianto:
A radiatori
Tipo alimentazione:
Metano

Ti interessa visionare l'immobile?

Fissa un appuntamento  Fissa un appuntamento

Richiedi informazioni

Clicca su Leggi per aprire l'informativa
* Questi campi sono obbligatori

Calcola il tuo mutuo

Semplice e senza impegno
Anticipo

( % )
Mutuo

( % )

pochi semplici passi

inserisci i tuoi dati
Questionario completato
Grazie per aver richiesto un appuntamento senza impegno con un nostro Consulente del Credito e Assicurativo.

Hai inserito correttamente tutti i dati necessari e a breve riceverai una e-mail con un link da convalidare per inviare i tuoi dati.
Affiliato
Studio San Benedetto Del Tronto Srl
Via Salaria, 350 63031 Castel Di Lama (AP)

Il nostro staff


  • Cherol Bracalè
    Responsabile

  • Fabio Foglia
    Responsabile

  • Elisa Giorgi
    Coordinatrice

  • Andrea Olivieri
    Affiliato

  • Stefano Angelini
    Affiliato
Via Salaria, 350 63031 Castel Di Lama (AP)
Zona: Castel di Lama-Colli del Tronto
Mostra su mappa
Orari: dal lunedì al venerdì 09:00/13:00 - 15:30/19:30 - sabato 09:00/13:00
Affiliato
Studio San Benedetto Del Tronto Srl
Via Salaria, 350 63031 Castel Di Lama (AP)

2026 Tecnocasa Franchising S.p.A. - P. IVA 08365160152 - Via Monte Bianco 60/A 20089 Rozzano (MI). Ogni agenzia ha un proprio titolare ed è autonoma. Privacy policy | Policy utilizzo | Cookie policy